home fanfic meta graphics links email
Home / Learn Something / Facts About New Orleans for Spec Writers / Second Floor of the Flat at Rue Royale

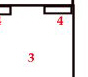
All locations are numbered in red. A door is indicated anytime you see | |. Explanations of the layout are listed below the drawing.

  1. Exterior Gallery which faces Royal Street. It goes along the front of the house and connects Louis and Lestat's rooms
  2. Louis' room
  3. Lestat's room
  4. Built-in closets
  5. Claudia's room
  6. Sickroom/Guest Room
  7. Main Hall/library
  8. Hallway to the exterior courtyard galleries
  9. Stairs to the first floor
  10. Small staircase leading down the the bathroom
  11. Bathroom
  12. Exterior courtyard gallery by Claudia's room.
  13. Exterior courtyard gallery that goes along the servants' quarters
  14. Bedroom
  15. Dirty Clothes room
  16. Bedroom
  17. Servants' staircase
  18. Bedroom

The placement of bedrooms and Louis' library is always a big thing for spec writers so let me clarify the picture a bit:

The Library is basically an open area on the second floor with a small skylight above it. From it you can get to the 3 main bedrooms. This would naturally make the Library a high-traffic area with everyone coming and going, which is why there are also doorways inside of the bedrooms to connect them. Thus, for example, Louis and Lestat could go into one another's bedrooms directly without having to go to the Library/hallway first. (The two of them could also use the gallery for this purpose).

The Sickroom/Guest room is very small. Literally only big enough to fit a bed in (the length of the bed would hit 3 walls) and have enough room for someone to open the door and walk in. It was designed as a place to isolate people who were ill so they wouldn't get the rest of the household sick. I would not suggest this room as a place to put, say, David, unless you didn't like him very much.

The Servants' Quarters are open to a lot of interpretation for specs. If you're writing a spec that takes place in modern times, this is where you would need to put any extra guests in the house. Note that these bedrooms are isolated and only open out onto the gallery. Anyone staying in these rooms would need to get onto the gallery, go to the door by the hallway and enter there before they could interact with other members of the house.

home fanfic meta graphics links email